top of page
Poddasze w Krakowie II

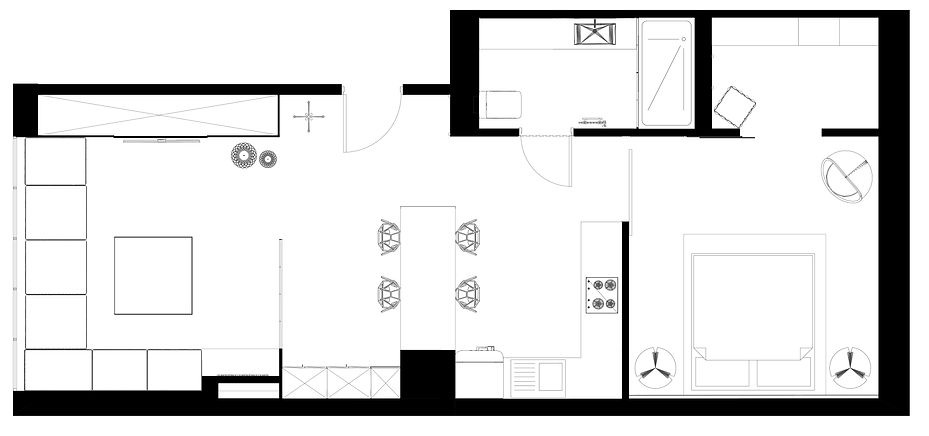
Projekt adaptacji poddasza w krakowskiej kamienicy na przestrzeń mieszkalną. Jedno z trzech mieszkań na poddaszu o powierzchni 60 m2. Składa sie z dużego salonu z kuchnią, łazienki oraz sypialni z garderobą. Stonowana kolorystyka (dominuje drewno, biel, odcienie szarości) została wzbogacona o żółte akcenty. Sercem mieszkania jest salon z kuchnią, obie strefy oddziela od siebie stół z hokerami, który znajduje się na wprost wejścia do mieszkania, Duże okna w części dziennej zapewniają dobre doświetlenie oraz optycznie powiększają pomieszczenie, Otawrty plan mieszkania zapewnia przestronność, a minimalistyczny wystrój i stonowana kolorystyka uniwersalny charakter wnętrza.





bottom of page